物件詳細情報
物件番号
99739240
種目
売一戸建て住宅等 新築一戸建
新築中古区分
新築
価格
3,498万円
所在地
春日市一の谷5丁目
最寄駅
博多南線 博多南 徒歩20分 (1565m)
バス
西鉄バス 一の谷一丁目 7分 (516m)
小学校区
春日市立春日西小学校
中学校区
春日市立春日西中学校
土地面積
100.49㎡
(30.40坪)
土地権利
所有権
地積測定方式
実測
建物面積
93.03㎡
(28.14坪)
バルコニー方向
南
建物構造
木造
地上階層
2階建
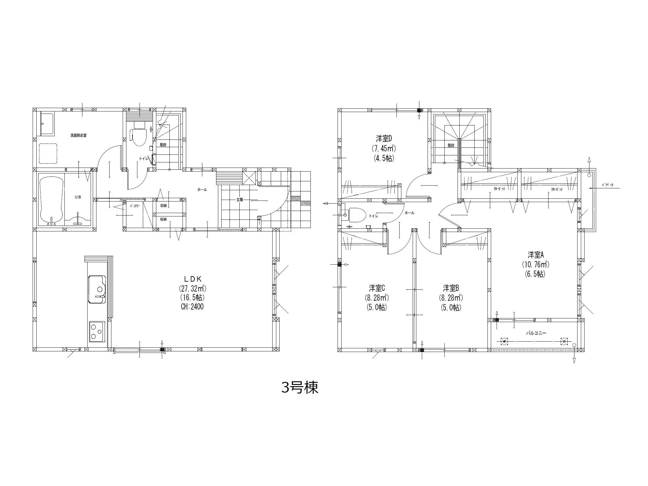
間取り
4LDK
間取り内訳
LDK16.5畳/洋室6.5畳/洋室5畳/洋室5畳/洋室4.5畳
地目
宅地
都市計画
市街化区域
用途地域
一種中高層
接道1
南6m 公道
接道2
東5.9m 公道
接道備考
角地
駐車場
有(2台)
現況
空家
引渡し時期
即時
取引態様
媒介
物件の特徴・備考
3号棟
人気の角地♪有ると嬉しいパントリー付
主寝室大型クローゼット付き4LDK!
周辺環境情報
🏫
小学校
春日市立春日西小学校
学区内
🏫
中学校
春日市立春日西中学校
学区内
地図
所在地: 春日市 一の谷5丁目
※ 地図の位置は概略です。正確な所在地はお問い合わせください。