物件詳細情報
物件番号
99807426
種目
売一戸建て住宅等 新築一戸建
新築中古区分
新築
価格
4,398万円
所在地
春日市弥生2丁目
最寄駅
鹿児島本線 南福岡 徒歩22分 (1723m)
バス
西鉄バス 岡本(春日市) 9分 (714m)
小学校区
春日市立須玖小学校
中学校区
春日市立春日中学校
土地面積
140.88㎡
(42.62坪)
土地権利
所有権
地積測定方式
実測
建物面積
93.43㎡
(28.26坪)
バルコニー方向
南
建物構造
木造
地上階層
2階建
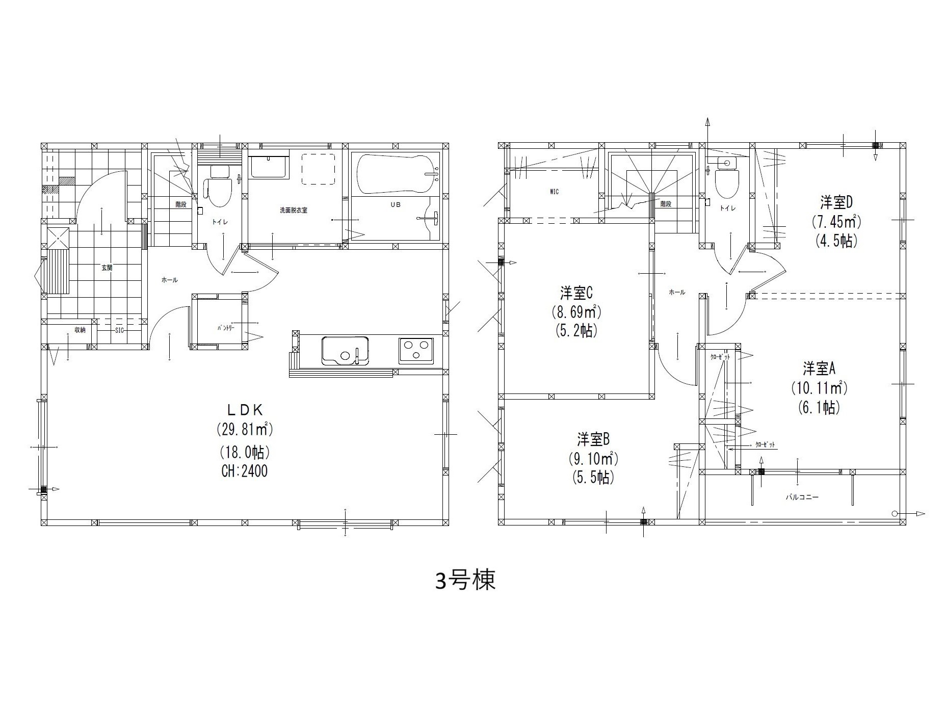
間取り
4LDK
間取り内訳
LDK18畳/洋室6.1畳/洋室5.5畳/洋室5.2畳/洋室4.5畳
地目
山林
都市計画
市街化区域
用途地域
二種中高層
接道1
西4m 私道
接道備考
一方道路
駐車場
有(2台)
現況
建築中
引渡し時期
予定
引渡し時期(年)
2026年
引渡し時期(月)
6月
引渡し時期(旬)
下旬
取引態様
媒介
物件の特徴・備考
洋室AとDの間は間仕切り対応可♪
広々LDK18帖♪WIC付4SLDK!
建築確認
第KJH25-03102-1号
周辺環境情報
🏫
小学校
春日市立須玖小学校
学区内
🏫
中学校
春日市立春日中学校
学区内
地図
所在地: 春日市 弥生2丁目
※ 地図の位置は概略です。正確な所在地はお問い合わせください。