大野城市若草2丁目

💰
価格
4,398万円
🏠
物件種目
売一戸建て住宅等 新築一戸建
📐
土地面積
209.70㎡
(63.43坪)
🏗️
建物面積
99.24㎡
(30.02坪)
📅
築年月
2026年03月
(築1ヶ月)
🚪
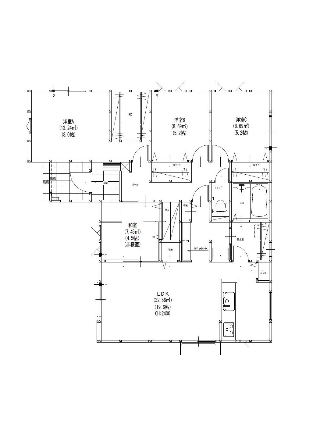
間取り
4LDK
🚗
駐車場

(3以上台)

物件詳細情報

物件番号
99766249
種目
売一戸建て住宅等 新築一戸建
価格
4,398万円
坪単価
69万円
所在地
大野城市若草2丁目
最寄駅
鹿児島本線 大野城 徒歩43分 (3427m)
バス
西鉄バス 畑ヶ坂二丁目 5分 (383m)
土地面積
209.70㎡ (63.43坪)
土地権利
所有権
地積測定方式
実測
建物面積
99.24㎡ (30.02坪)
建物構造
木造
間取り
4LDK
間取り内訳
LDK19.6畳/洋室8畳/洋室5.2畳/洋室5.2畳/和室4.5畳
地目
宅地
都市計画
市街化区域
用途地域
一種低層
接道備考
角地
駐車場
有(3以上台)
現況
未完成
引渡し時期
相談
引渡し時期(年)
2026年
引渡し時期(月)
4月
引渡し時期(旬)
中旬
取引態様
媒介

物件の特徴・備考

駐車スペース4台分!
贅沢な平屋です!

建築確認

地図

所在地: 大野城市 若草2丁目

※ 地図の位置は概略です。正確な所在地はお問い合わせください。

この物件について
お問い合わせ

📞
お電話でのお問い合わせ
092-558-8477
営業時間
10:00〜19:00
来店予約をする