大野城市乙金3丁目

💰
価格
4,298万円
🏠
物件種目
売一戸建て住宅等 新築一戸建
📐
土地面積
131.09㎡
(39.65坪)
🏗️
建物面積
111.74㎡
(33.80坪)
📅
築年月
2026年02月
(築2ヶ月)
🚪
間取り
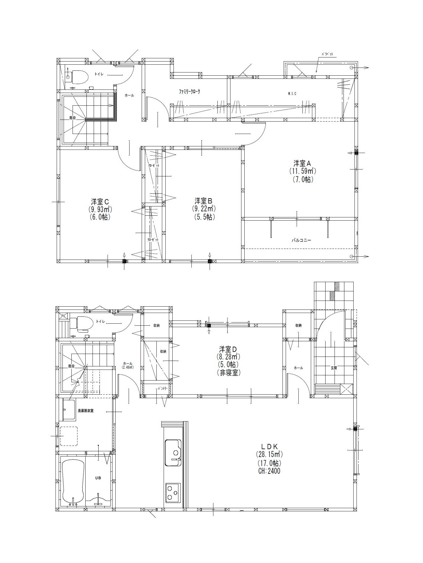
4LDK
🚗
駐車場

(2台)

物件詳細情報

物件番号
99763847
種目
売一戸建て住宅等 新築一戸建
価格
4,298万円
坪単価
108万円
所在地
大野城市乙金3丁目
最寄駅
西鉄天神大牟田線 白木原 徒歩30分 (2400m)
バス
西鉄バス 乙金 14分 (1112m)
土地面積
131.09㎡ (39.65坪)
土地権利
所有権
地積測定方式
実測
建物面積
111.74㎡ (33.80坪)
バルコニー方向
建物構造
木造
地上階層
2階建
間取り
4LDK
間取り内訳
LDK17畳/洋室7畳/洋室6畳/洋室5.5畳/洋室5畳
地目
宅地
都市計画
市街化区域
用途地域
一種中高層
接道備考
角地
駐車場
有(2台)
現況
空家
引渡し時期
相談
取引態様
媒介

物件の特徴・備考

玄関→LDK→2階の親御さん安心間取り♪
LDK+隣接洋室で23帖!
ファミリーCL+WICで収納◎

建築確認

地図

所在地: 大野城市 乙金3丁目

※ 地図の位置は概略です。正確な所在地はお問い合わせください。

この物件について
お問い合わせ

📞
お電話でのお問い合わせ
092-558-8477
営業時間
10:00〜19:00
来店予約をする