福岡市 南区曰佐1丁目

💰
価格
4,298万円
🏠
物件種目
売一戸建て住宅等 新築一戸建
📐
土地面積
114.46㎡
(34.62坪)
🏗️
建物面積
96.65㎡
(29.24坪)
📅
築年月
2026年06月
(築9ヶ月)
🚪
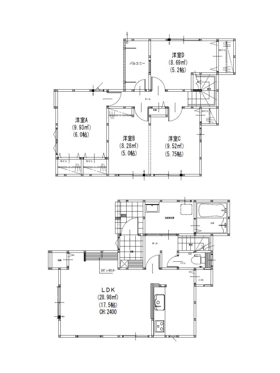
間取り
4LDK
🚗
駐車場

(2台)

物件詳細情報

物件番号
99801519
種目
売一戸建て住宅等 新築一戸建
新築中古区分
新築
価格
4,298万円
所在地
福岡市 南区曰佐1丁目
最寄駅
西鉄天神大牟田線 井尻 徒歩23分 (1820m)
バス
西鉄バス 的場二丁目 3分 (194m)
小学校区
福岡市立曰佐小学校
中学校区
福岡市立横手中学校
土地面積
114.46㎡ (34.62坪)
土地権利
所有権
地積測定方式
実測
建物面積
96.65㎡ (29.24坪)
バルコニー方向
南西
建物構造
木造
地上階層
2階建
間取り
4LDK
間取り内訳
LDK17.5畳/洋室6畳/洋室5.7畳/洋室5.2畳/洋室5畳
地目
宅地
都市計画
市街化区域
用途地域
一種住居
接道1
南西4.4m 公道
接道備考
一方道路
駐車場
有(2台)
現況
建築中
引渡し時期
予定
引渡し時期(年)
2026年
引渡し時期(月)
6月
引渡し時期(旬)
下旬
取引態様
媒介

物件の特徴・備考

洋室BとCは間仕切り対応可♪
洗面所広々
玄関→LDK→2階の親御さん安心間取りの4LDK!

建築確認

第LKJ25-02671-1号

周辺環境情報

🏫
小学校
福岡市立曰佐小学校
学区内
🏫
中学校
福岡市立横手中学校
学区内

地図

所在地: 福岡市 南区 曰佐1丁目

※ 地図の位置は概略です。正確な所在地はお問い合わせください。

この物件について
お問い合わせ

📞
お電話でのお問い合わせ
092-558-8477
営業時間
10:00〜19:00
来店予約をする